Une expertise pour des projets sur mesure
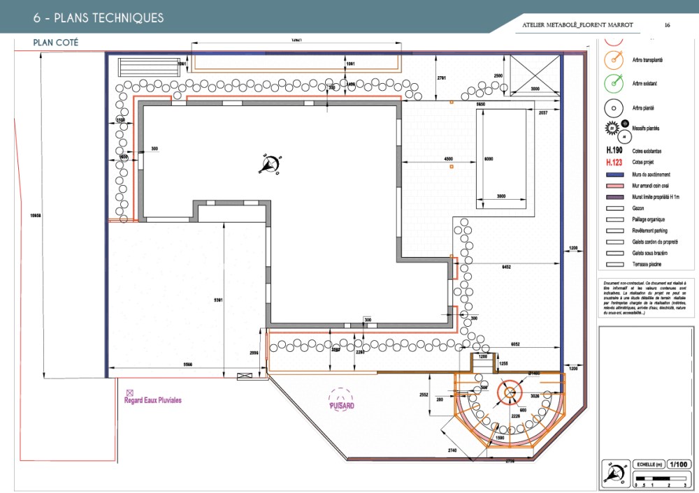
Voici un type d’étude paysagère dont le format concis et synthétique aboutit à des projets précis, qualitatifs et dans des délais raisonnables. Ces études peuvent ensuite être soumises à des entrepreneurs du paysages et autres artisans afin d’obtenir un chiffrage efficace du chantier qui aura été préalablement pensé dans sa globalité. Faites appel à notre expertise réaliser des projets sur mesure, faciliter vos chantier ainsi que l’articulation des différents corps de métiers.


















